Перейти к контенту
Подбор и сравнение проектов домов от застройщиков Московской области
Подборщик домов
Калькулятор сметы
Калькулятор площади
Форум
Блог
Главная
›
Каталог проектов
›
Проект E-400-1K
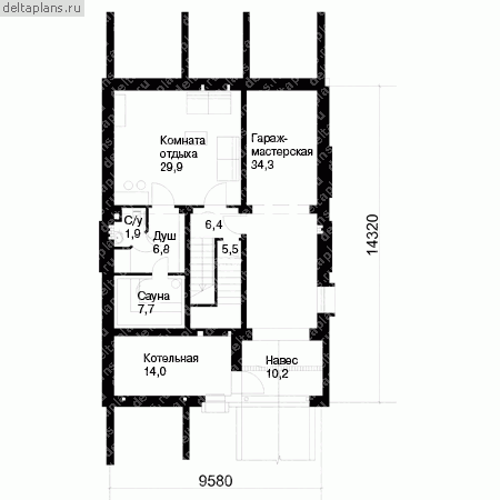
Проект E-400-1K
Застройщик: Юникс-Строй
400.0 м²
1 / 5
🏠
400.0 м²
📐
3 этаж
🧱
Кирпич
Похожие проекты
Похожие по цене
Похожие по площади
Проект одноэтажного коттеджа "Черкизово" из газобетона
3 спальн. · 3 этаж
от 32 838 000 ₽
→
Проект «California»
7 спальн. · 7 санузл.
от 32 750 000 ₽
→
Проект J-400-1K
3 этаж
от 32 734 400 ₽
→
Двухэтажный дом в стиле модерн «THIELT»
4 спальн. · 3 санузл. · 2 этаж
от 23 640 000 ₽
→
Проект J-400-1K
3 этаж
от 32 734 400 ₽
→
Проект J-401-1K
2 этаж
от 32 882 000 ₽
→
На сайт застройщика