Перейти к контенту
Подбор и сравнение проектов домов от застройщиков Московской области
Подборщик домов
Калькулятор сметы
Калькулятор площади
Форум
Блог
Главная
›
Каталог проектов
›
Проект E-443-1K
Проект E-443-1K
Застройщик: Юникс-Строй
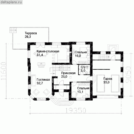
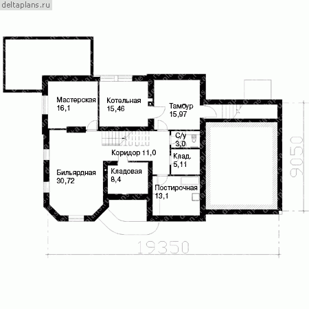
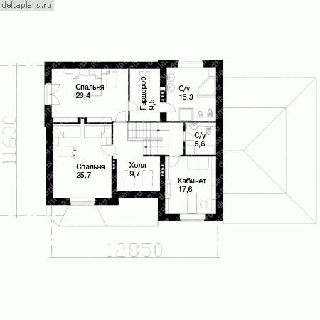
443.0 м²
1 / 4
🏠
443.0 м²
📐
3 этаж
🧱
Кирпич
Похожие проекты
Похожие по цене
Похожие по площади
Проект M-443-1K
3 этаж
от 36 330 100 ₽
→
Проект U-519-1P
3 этаж
от 36 343 300 ₽
→
Проект J-443-1K
3 этаж
от 36 293 200 ₽
→
Дом по проекту «ЗС 378-18» - Золотое Сечение
5 спальн. · 5 санузл.
от 55 375 000 ₽
→
Проект M-443-1K
3 этаж
от 36 330 100 ₽
→
Проект одноэтажного коттеджа "Цезарь" из газобетона
6 спальн. · 2 этаж
от 21 619 000 ₽
→
На сайт застройщика