Перейти к контенту
Подбор и сравнение проектов домов от застройщиков Московской области
Подборщик домов
Калькулятор сметы
Калькулятор площади
Форум
Блог
Главная
›
Каталог проектов
›
Проект E-458-1K
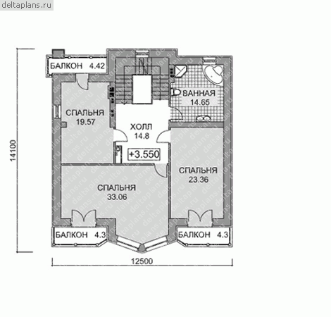
Проект E-458-1K
Застройщик: Юникс-Строй
458.8 м²
1 / 5
🏠
458.8 м²
📐
3 этаж
🧱
Кирпич
Похожие проекты
Похожие по цене
Похожие по площади
Проект W-459-1K
3 этаж
от 37 638 000 ₽
→
Проект «Mitchell»
5 спальн. · 6 санузл.
от 37 700 000 ₽
→
Проект «Princeton»
6 спальн. · 7 санузл.
от 37 700 000 ₽
→
Проект W-459-1K
3 этаж
от 37 638 000 ₽
→
Проект Giessen
4 спальн. · 6 санузл.
от 22 900 000 ₽
→
Дом с комбинированным фасадом «Гессен»
4 спальн. · 6 санузл. · 2 этаж
от 27 504 000 ₽
→
На сайт застройщика