Перейти к контенту
Подбор и сравнение проектов домов от застройщиков Московской области
Подборщик домов
Калькулятор сметы
Калькулятор площади
Форум
Блог
Главная
›
Каталог проектов
›
Проект E-693-1K
Проект E-693-1K
Застройщик: Юникс-Строй
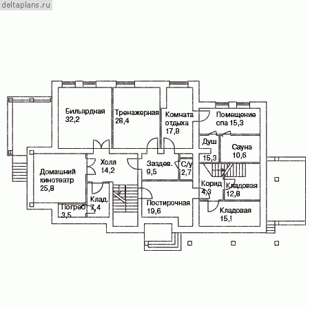
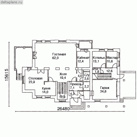
693.0 м²
1 / 4
🏠
693.0 м²
📐
3 этаж
🧱
Кирпич
Похожие проекты
Похожие по цене
Похожие по площади
Проект U-377-1D
2 этаж
от 56 622 000 ₽
→
Одноэтажный дом «Бергер» с плоской крышей
5 спальн. · 4 санузл. · 1 этаж
от 57 096 000 ₽
→
Проект дома Z-807-1P
1 этаж
от 56 490 000 ₽
→
Дом по проекту «ЗС 506-19» - Золотое Сечение
4 спальн. · 6 санузл.
от 86 750 000 ₽
→
Большой дом с гаражом на 4 машины «Моэн»
3 спальн. · 4 санузл. · 2 этаж
от 41 670 000 ₽
→
Проект «Darvel»
5 спальн. · 6 санузл.
от 34 750 000 ₽
→
На сайт застройщика