Перейти к контенту
Подбор и сравнение проектов домов от застройщиков Московской области
Подборщик домов
Калькулятор сметы
Калькулятор площади
Форум
Блог
Главная
›
Каталог проектов
›
Проект E-831-1K
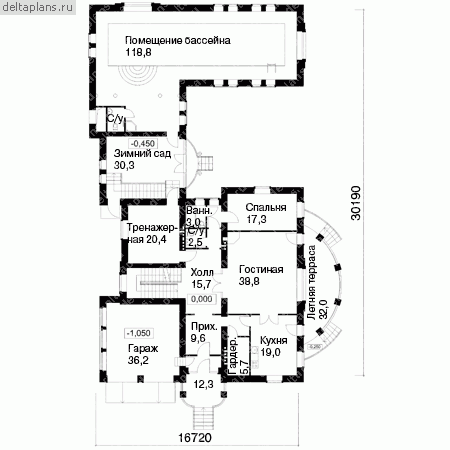
Проект E-831-1K
Застройщик: Юникс-Строй
831.6 м²
1 / 4
🏠
831.6 м²
📐
3 этаж
🧱
Кирпич
Похожие проекты
Похожие по цене
Похожие по площади
Проект «Florida»
6 спальн. · 9 санузл.
от 69 000 000 ₽
→
Проект G-820-1K
2 этаж
от 67 261 320 ₽
→
Проект «Freiburg»
6 спальн. · 9 санузл.
от 69 350 000 ₽
→
Проект «Vanguard»
6 спальн. · 7 санузл.
от 41 400 000 ₽
→
Проект «Vanguard»
6 спальн. · 7 санузл.
от 41 400 000 ₽
→
Дом в стиле Райта с большой террасой «Вангард»
6 спальн. · 7 санузл. · 2 этаж
от 49 686 000 ₽
→
На сайт застройщика