Перейти к контенту
Подбор и сравнение проектов домов от застройщиков Московской области
Подборщик домов
Калькулятор сметы
Калькулятор площади
Форум
Блог
Главная
›
Каталог проектов
›
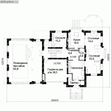
Проект E-910-1K
Проект E-910-1K
Застройщик: Юникс-Строй
910.0 м²
1 / 5
🏠
910.0 м²
📐
3 этаж
🧱
Кирпич
Похожие проекты
Похожие по цене
Похожие по площади
Большой дом с плоской крышей «Лубер»
6 спальн. · 9 санузл. · 2 этаж
от 73 920 000 ₽
→
Современная резиденция «Байрон» плоской крышей
8 спальн. · 9 санузл. · 2 этаж
от 76 824 000 ₽
→
Проект дома «Marion»
6 спальн. · 7 санузл. · 2 этаж
от 77 100 000 ₽
→
Проект «Nottingham»
7 спальн. · 7 санузл. · 2 этаж
от 45 500 000 ₽
→
Двухэтажный дом с мансардой «Ноттингем»
7 спальн. · 7 санузл. · 2 этаж
от 54 618 000 ₽
→
Проект «Devine»
4 спальн. · 5 санузл. · 1 этаж
от 45 415 000 ₽
→
На сайт застройщика