Перейти к контенту
Подбор и сравнение проектов домов от застройщиков Московской области
Подборщик домов
Калькулятор сметы
Калькулятор площади
Форум
Блог
Главная
›
Каталог проектов
›
Проект F-081-1K
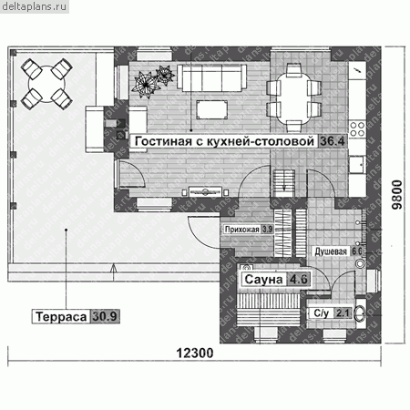
Проект F-081-1K
Застройщик: Юникс-Строй
80.7 м²
1 / 3
🏠
80.7 м²
📐
2 этаж
🧱
Кирпич
Похожие проекты
Похожие по цене
Похожие по площади
Проект D-081-1P
1 санузл. · 1 этаж
от 6 617 400 ₽
→
Каркасный дом С-141 КР «Монарх»
3 спальн. · 2 санузл. · 3 этаж
от 6 614 000 ₽
→
Проект двухэтажного коттеджа "Анис" из газобетона
3 спальн. · 2 этаж
от 6 611 000 ₽
→
Проект D-081-1D
2 этаж
от 12 105 000 ₽
→
Проект D-081-1P
1 санузл. · 1 этаж
от 6 617 400 ₽
→
Проект одноэтажного дома "Антоновка" из бруса
3 спальн. · 2 этаж
от 5 974 954 ₽
→
На сайт застройщика