Перейти к контенту
Подбор и сравнение проектов домов от застройщиков Московской области
Подборщик домов
Калькулятор сметы
Калькулятор площади
Форум
Блог
Главная
›
Каталог проектов
›
Проект F-172-1P
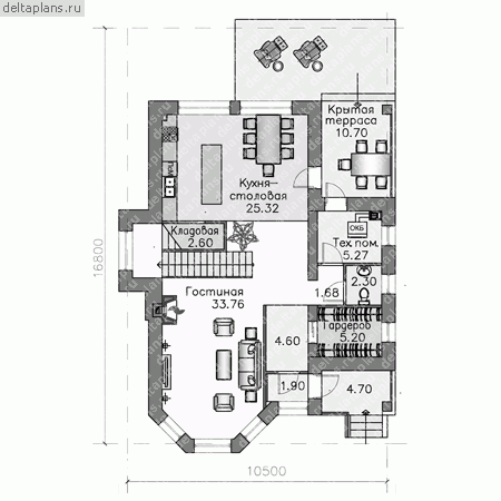
Проект F-172-1P
Застройщик: Юникс-Строй
172.1 м²
1 / 3
🏠
172.1 м²
📐
2 этаж
🧱
Пеноблок
Похожие проекты
Похожие по цене
Похожие по площади
Проект G-172-3P
2 этаж
от 12 047 000 ₽
→
Проект H-172-1P
2 этаж
от 12 047 000 ₽
→
Проект M-172-1P
2 этаж
от 12 047 000 ₽
→
Проект одноэтажного коттеджа "Рамиата КД" из газобетона
2 спальн. · 2 этаж
от 9 780 000 ₽
→
Проект G-172-3P
2 этаж
от 12 047 000 ₽
→
Проект H-172-1P
2 этаж
от 12 047 000 ₽
→
На сайт застройщика