Перейти к контенту
Подбор и сравнение проектов домов от застройщиков Московской области
Подборщик домов
Калькулятор сметы
Калькулятор площади
Форум
Блог
Главная
›
Каталог проектов
›
Проект F-258-1P
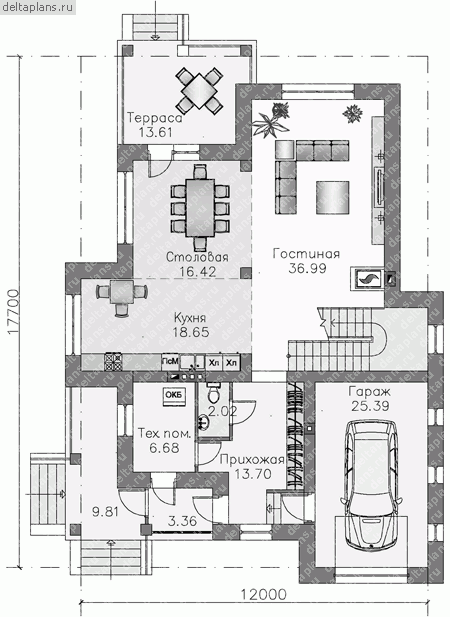
Проект F-258-1P
Застройщик: Юникс-Строй
258.3 м²
1 / 3
🏠
258.3 м²
📐
2 этаж
🧱
Пеноблок
Похожие проекты
Похожие по цене
Похожие по площади
Проект дома из керамоблоков 15х12 ТКБ-278: цена 10590000 руб.
7 спальн. · 3 санузл. · 2 этаж
от 18 088 000 ₽
→
Проект дома из керамоблоков 16х12 ТКБ-238: цена 13285000 руб.
4 спальн. · 2 санузл. · 1 этаж
от 18 092 000 ₽
→
Проект R-220-1K
2 этаж
от 18 097 400 ₽
→
Проект U-258-1K
3 этаж
от 21 180 600 ₽
→
Проект N-258-1D
3 этаж
от 38 730 000 ₽
→
Проект одноэтажного коттеджа "Малиновый" из газобетона
4 спальн. · 2 этаж
от 11 486 000 ₽
→
На сайт застройщика