Перейти к контенту
Подбор и сравнение проектов домов от застройщиков Московской области
Подборщик домов
Калькулятор сметы
Калькулятор площади
Форум
Блог
Главная
›
Каталог проектов
›
Проект F-378-1K
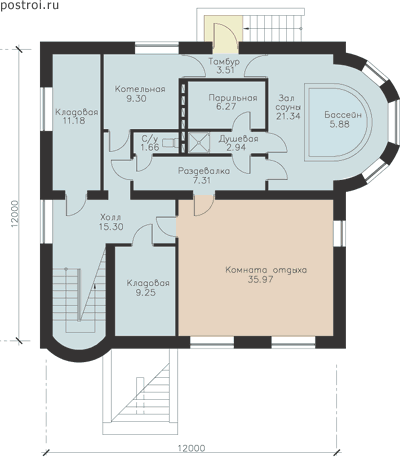
Проект F-378-1K
Застройщик: Юникс-Строй
288.64 м²
1 / 4
🏠
288.64 м²
📐
3 этаж
🧱
Кирпич
Похожие проекты
Похожие по цене
Похожие по площади
Проект одноэтажного коттеджа "Волчок" из газобетона
3 спальн. · 1 этаж
от 23 656 000 ₽
→
Проект U-288-1K
3 этаж
от 23 654 540 ₽
→
Проект дома K-339-1P
2 этаж
от 23 692 200 ₽
→
Проект U-288-1P
2 этаж
от 20 206 900 ₽
→
Проект U-288-2P
2 этаж
от 20 202 000 ₽
→
Проект U-288-1K
3 этаж
от 23 654 540 ₽
→
На сайт застройщика