Перейти к контенту
Подбор и сравнение проектов домов от застройщиков Московской области
Подборщик домов
Калькулятор сметы
Калькулятор площади
Форум
Блог
Главная
›
Каталог проектов
›
Проект G-098-1D
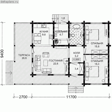
Проект G-098-1D
Застройщик: Юникс-Строй
97.6 м²
1 / 2
🏠
97.6 м²
🚿
1 санузл.
📐
1 этаж
🧱
Дерево
Похожие проекты
Похожие по цене
Похожие по площади
Небольшой одноэтажный дом «Вивон»
3 спальн. · 2 санузл. · 1 этаж
от 14 640 000 ₽
→
Проект W-179-1K
2 этаж
от 14 637 000 ₽
→
Проект V-178-1K
2 этаж
от 14 632 080 ₽
→
Строительство каркасного дома 11х8 "Кейт" под ключ
3 спальн. · 1 санузл. · 1 этаж
от 4 026 000 ₽
→
Проект дома Корвет
2 этаж
от 1 545 495 ₽
→
Спутник 5 (9.6x11.1)
2 спальн. · 1 санузл. · 1 этаж
от 5 642 000 ₽
→
На сайт застройщика