Перейти к контенту
Подбор и сравнение проектов домов от застройщиков Московской области
Подборщик домов
Калькулятор сметы
Калькулятор площади
Форум
Блог
Главная
›
Каталог проектов
›
Проект G-111-2P
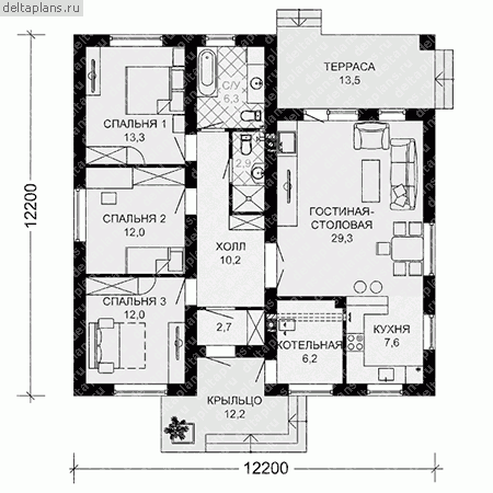
Проект G-111-2P
Застройщик: Юникс-Строй
108.7 м²
1 / 2
🏠
108.7 м²
📐
1 этаж
🧱
Пеноблок
Похожие проекты
Похожие по цене
Похожие по площади
Дом из газобетонных блоков С-135 ГБ «Афродита»
3 спальн. · 1 санузл. · 3 этаж
от 7 606 000 ₽
→
Дом из керамических блоков С-135 КЕ «Афродита»
3 спальн. · 1 санузл. · 3 этаж
от 7 606 000 ₽
→
Проект одноэтажного коттеджа "Финский" из газобетона
2 спальн. · 2 этаж
от 7 604 000 ₽
→
Проект каркасного дома КП-117
1 этаж
от 7 500 000 ₽
→
Проект N-109-1D
2 этаж
от 16 305 000 ₽
→
Проект дома AS-139
2 этаж
от 4 449 920 ₽
→
На сайт застройщика