Перейти к контенту
Подбор и сравнение проектов домов от застройщиков Московской области
Подборщик домов
Калькулятор сметы
Калькулятор площади
Форум
Блог
Главная
›
Каталог проектов
›
Проект G-130-2P
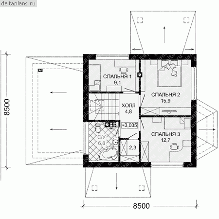
Проект G-130-2P
Застройщик: Юникс-Строй
132.9 м²
1 / 3
🏠
132.9 м²
📐
2 этаж
🧱
Пеноблок
Похожие проекты
Похожие по цене
Похожие по площади
Проект К-218 11 на 13, площадью 277 за 9 302 250 руб
6 спальн. · 2 этаж
от 9 302 250 ₽
→
Кирпичный дом С-183 К «Арми»
3 спальн. · 2 санузл. · 3 этаж
от 9 302 000 ₽
→
Проект M-062-1D
2 этаж
от 9 300 000 ₽
→
Проект одноэтажного коттеджа "Финский" из газобетона
2 спальн. · 2 этаж
от 7 604 000 ₽
→
Проект одноэтажного каркасного дома "ЭнцеладК"
4 спальн. · 2 этаж
от 9 636 082 ₽
→
Проект одноэтажного коттеджа "Мини" из газобетона
2 спальн. · 1 этаж
от 11 199 000 ₽
→
На сайт застройщика