Перейти к контенту
Подбор и сравнение проектов домов от застройщиков Московской области
Подборщик домов
Калькулятор сметы
Калькулятор площади
Форум
Блог
Главная
›
Каталог проектов
›
Проект G-150-1P
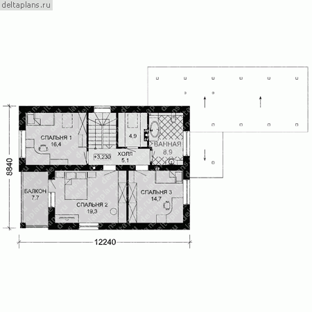
Проект G-150-1P
Застройщик: Юникс-Строй
149.6 м²
1 / 3
🏠
149.6 м²
📐
2 этаж
🧱
Пеноблок
Похожие проекты
Похожие по цене
Похожие по площади
Проект К-206 15 на 12, площадью 374 за 12 393 000 руб
4 спальн. · 2 этаж
от 10 472 000 ₽
→
Кирпичный дом С-207 К «Бремен»
3 спальн. · 2 санузл. · 3 этаж
от 10 472 000 ₽
→
Проект одноэтажного каркасного дома "Ласточка-1"
4 спальн. · 2 этаж
от 10 474 002 ₽
→
Проект U-149-1K
3 этаж
от 12 263 920 ₽
→
Проект U-132-1K
2 этаж
от 12 276 220 ₽
→
Проект дома H-155-1P
3 этаж
от 10 459 400 ₽
→
На сайт застройщика