Перейти к контенту
Подбор и сравнение проектов домов от застройщиков Московской области
Подборщик домов
Калькулятор сметы
Калькулятор площади
Форум
Блог
Главная
›
Каталог проектов
›
Проект G-152-1P
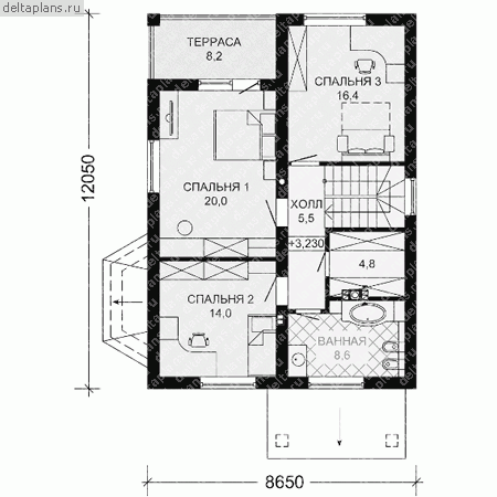
Проект G-152-1P
Застройщик: Юникс-Строй
151.9 м²
1 / 3
🏠
151.9 м²
📐
2 этаж
🧱
Пеноблок
Похожие проекты
Похожие по цене
Похожие по площади
Проект дома F-160-1P
2 этаж
от 10 633 000 ₽
→
Проект дома H-153-1P
2 этаж
от 10 633 700 ₽
→
Проект одноэтажного дома "Пыжик" из бруса
4 спальн. · 2 этаж
от 10 636 283 ₽
→
Проект дома F-160-1P
2 этаж
от 10 633 000 ₽
→
Проект дома H-153-1P
2 этаж
от 10 633 700 ₽
→
Проект дома «Болтон»
3 спальн. · 2 этаж
от 7 213 000 ₽
→
На сайт застройщика