Перейти к контенту
Подбор и сравнение проектов домов от застройщиков Московской области
Подборщик домов
Калькулятор сметы
Калькулятор площади
Форум
Блог
Главная
›
Каталог проектов
›
Проект G-159-1K
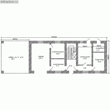
Проект G-159-1K
Застройщик: Юникс-Строй
158.94 м²
1 / 4
🏠
158.94 м²
📐
3 этаж
🧱
Кирпич
Похожие проекты
Похожие по цене
Похожие по площади
Дом из клееного бруса «Хотьково» | ЭкоТех
2 спальн. · 3 санузл. · 1 этаж
от 13 030 000 ₽
→
Проект G-172-2P
2 этаж
от 13 027 000 ₽
→
Проект двухэтажного дома "Уголок-М1" из бруса
4 спальн. · 2 этаж
от 13 040 589 ₽
→
Проект одноэтажного дома "Адриано" из бруса
2 спальн. · 2 этаж
от 11 701 969 ₽
→
Проект одноэтажного дома "Опус" из бруса
4 спальн. · 2 этаж
от 10 921 838 ₽
→
Двухэтажный дом 5 спален №356
2 этаж
от 11 712 800 ₽
→
На сайт застройщика