Перейти к контенту
Подбор и сравнение проектов домов от застройщиков Московской области
Подборщик домов
Калькулятор сметы
Калькулятор площади
Форум
Блог
Главная
›
Каталог проектов
›
Проект G-177-1P
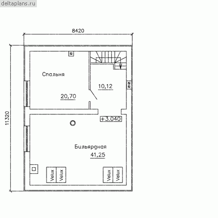
Проект G-177-1P
Застройщик: Юникс-Строй
176.28 м²
1 / 3
🏠
176.28 м²
📐
2 этаж
🧱
Пеноблок
Похожие проекты
Похожие по цене
Похожие по площади
Дом 8 спален гостиница №349
2 этаж
от 12 337 900 ₽
→
Проект 8 спален гостиница №349
2 этаж
от 12 337 900 ₽
→
Проект дома H-176-1P
1 этаж
от 12 334 000 ₽
→
Проект дома из газоблоков 12х13 ГББ-176: цена 8726000 руб.
6 спальн. · 4 санузл. · 2 этаж
от 13 186 000 ₽
→
Проект дома из керамоблоков 12х13 ТКБ-176: цена 8449000 руб.
6 спальн. · 4 санузл. · 2 этаж
от 14 543 000 ₽
→
Проект D-176-1D
2 этаж
от 26 430 000 ₽
→
На сайт застройщика