Перейти к контенту
Подбор и сравнение проектов домов от застройщиков Московской области
Подборщик домов
Калькулятор сметы
Калькулятор площади
Форум
Блог
Главная
›
Каталог проектов
›
Проект G-203-1P
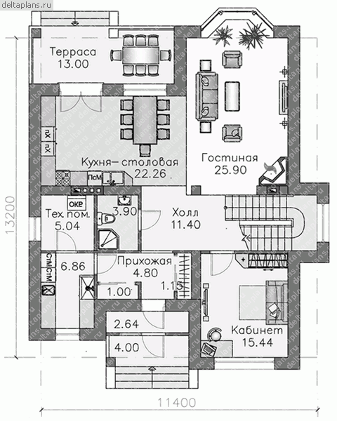
Проект G-203-1P
Застройщик: Юникс-Строй
203.7 м²
1 / 3
🏠
203.7 м²
📐
2 этаж
🧱
Пеноблок
Похожие проекты
Похожие по цене
Похожие по площади
Проект A-204-1P
2 этаж
от 14 261 800 ₽
→
Проект двухэтажного коттеджа "Шафран КД" из газобетона
5 спальн. · 2 этаж
от 14 263 000 ₽
→
Проект N-204-1P
2 этаж
от 14 252 700 ₽
→
Проект одноэтажного коттеджа "Твистер" из газобетона
3 спальн. · 2 этаж
от 12 584 000 ₽
→
Проект M-204-1K
2 этаж
от 16 702 580 ₽
→
Проект A-204-1P
2 этаж
от 14 261 800 ₽
→
На сайт застройщика