Перейти к контенту
Подбор и сравнение проектов домов от застройщиков Московской области
Подборщик домов
Калькулятор сметы
Калькулятор площади
Форум
Блог
Главная
›
Каталог проектов
›
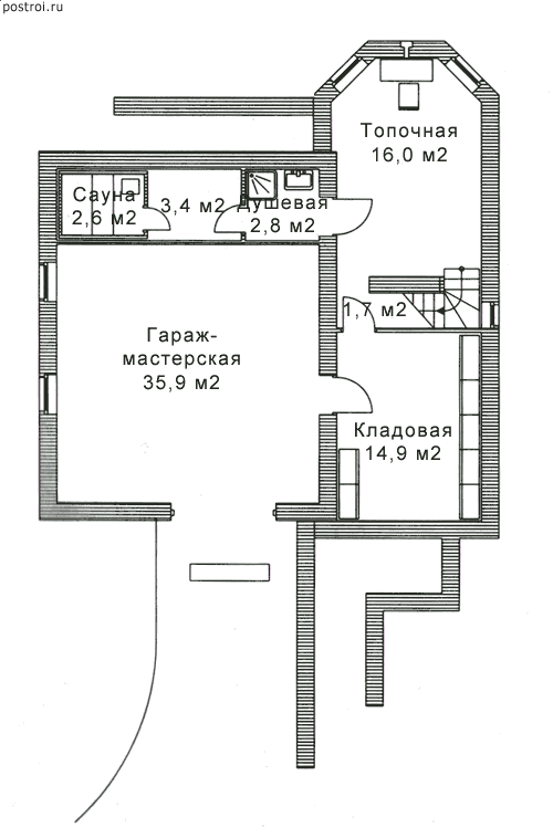
Проект G-212-1P
Проект G-212-1P
Застройщик: Юникс-Строй
211.7 м²
1 / 4
🏠
211.7 м²
📐
3 этаж
🧱
Пеноблок
Похожие проекты
Похожие по цене
Похожие по площади
Проект дома из газоблоков 18х11 ГББ-215: цена 9767000 руб.
6 спальн. · 4 санузл. · 2 этаж
от 14 808 000 ₽
→
Проект двухэтажного дома "Уголок-М4" из бруса
4 спальн. · 2 этаж
от 14 800 669 ₽
→
Проект дома R-189-1P
2 этаж
от 14 840 000 ₽
→
Проект одноэтажного коттеджа "Датский" из газобетона
4 спальн. · 2 этаж
от 10 045 000 ₽
→
Альпиец 3
4 спальн. · 2 санузл. · 2 этаж
от 9 679 800 ₽
→
Проект одноэтажного дома "Волопас" из бруса
3 спальн. · 2 этаж
от 15 250 289 ₽
→
На сайт застройщика