Перейти к контенту
Подбор и сравнение проектов домов от застройщиков Московской области
Подборщик домов
Калькулятор сметы
Калькулятор площади
Форум
Блог
Главная
›
Каталог проектов
›
Проект G-223-1P
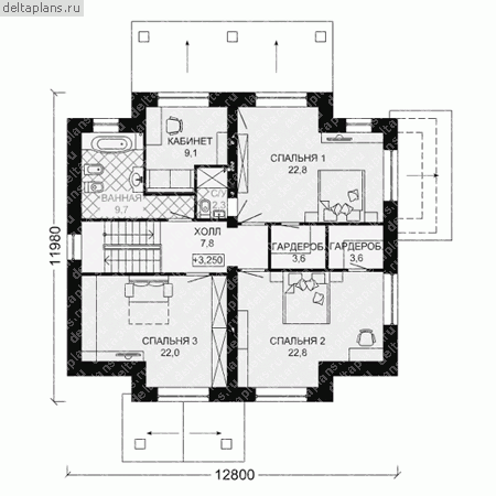
Проект G-223-1P
Застройщик: Юникс-Строй
223.0 м²
1 / 3
🏠
223.0 м²
📐
2 этаж
🧱
Пеноблок
Похожие проекты
Похожие по цене
Похожие по площади
Проект дома E-223-1P
2 этаж
от 15 610 000 ₽
→
Проект E-190-1K
2 этаж
от 15 612 800 ₽
→
Проект S-191-1K
2 этаж
от 15 604 600 ₽
→
Проект одноэтажного каркасного дома "Чери2"
5 спальн. · 2 этаж
от 16 708 527 ₽
→
Дом 3 спальни второй свет №348
2 этаж
от 10 099 940 ₽
→
Проект 3 спальни второй свет №348
2 этаж
от 10 099 940 ₽
→
На сайт застройщика