Перейти к контенту
Подбор и сравнение проектов домов от застройщиков Московской области
Подборщик домов
Калькулятор сметы
Калькулятор площади
Форум
Блог
Главная
›
Каталог проектов
›
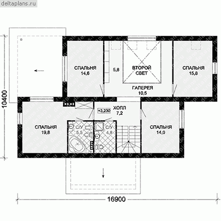
Проект G-229-1P
Проект G-229-1P
Застройщик: Юникс-Строй
229.9 м²
1 / 3
🏠
229.9 м²
📐
2 этаж
🧱
Пеноблок
Похожие проекты
Похожие по цене
Похожие по площади
Проект двухэтажного дома "Булат" из бруса
3 спальн. · 2 этаж
от 16 090 207 ₽
→
Дом из газобетонных блоков С-384 ГБ «Балу»
4 спальн. · 4 санузл. · 4 этаж
от 16 096 000 ₽
→
Дом из керамических блоков С-384 КЕ «Балу»
4 спальн. · 4 санузл. · 4 этаж
от 16 096 000 ₽
→
Проект одноэтажного коттеджа "Ясная поляна" из газобетона
4 спальн. · 2 этаж
от 10 034 000 ₽
→
Проект двухэтажного дома "Октав-2" из бруса
4 спальн. · 2 этаж
от 15 317 844 ₽
→
Проект дома «Эдлер»
4 спальн. · 2 этаж
от 11 978 400 ₽
→
На сайт застройщика