Перейти к контенту
Подбор и сравнение проектов домов от застройщиков Московской области
Подборщик домов
Калькулятор сметы
Калькулятор площади
Форум
Блог
Главная
›
Каталог проектов
›
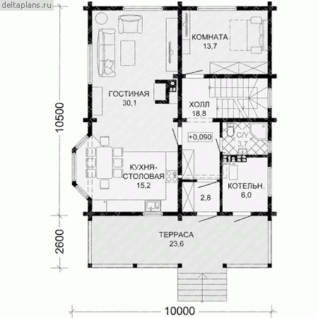
Проект G-244-1D
Проект G-244-1D
Застройщик: Юникс-Строй
244.5 м²
1 / 4
🏠
244.5 м²
📐
3 этаж
🧱
Дерево
Похожие проекты
Похожие по цене
Похожие по площади
Проект «Highland»
5 спальн. · 4 санузл. · 2 этаж
от 36 675 000 ₽
→
Проект «Highland»
5 спальн. · 4 санузл. · 2 этаж
от 36 675 000 ₽
→
Проект дома V-524-1P
2 этаж
от 36 680 000 ₽
→
Проект T-245-1K
1 этаж
от 20 049 000 ₽
→
Проект A-347-1P
2 этаж
от 17 112 200 ₽
→
Проект D-244-1K
3 этаж
от 20 057 200 ₽
→
На сайт застройщика