Перейти к контенту
Подбор и сравнение проектов домов от застройщиков Московской области
Подборщик домов
Калькулятор сметы
Калькулятор площади
Форум
Блог
Главная
›
Каталог проектов
›
Проект G-253-2P
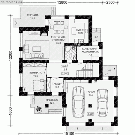
Проект G-253-2P
Застройщик: Юникс-Строй
254.9 м²
1 / 3
🏠
254.9 м²
📐
2 этаж
🧱
Пеноблок
Похожие проекты
Похожие по цене
Похожие по площади
Проект A-328-1K
2 этаж
от 17 853 040 ₽
→
Проект T-255-1P
3 этаж
от 17 831 800 ₽
→
Проект дома W-257-1P
3 этаж
от 17 857 000 ₽
→
Проект двухэтажного коттеджа "Звенигород" из газобетона
5 спальн. · 2 этаж
от 11 331 000 ₽
→
Проект T-255-1P
3 этаж
от 17 831 800 ₽
→
Проект E-255-1K
3 этаж
от 20 918 200 ₽
→
На сайт застройщика