Перейти к контенту
Подбор и сравнение проектов домов от застройщиков Московской области
Подборщик домов
Калькулятор сметы
Калькулятор площади
Форум
Блог
Главная
›
Каталог проектов
›
Проект G-354-1K
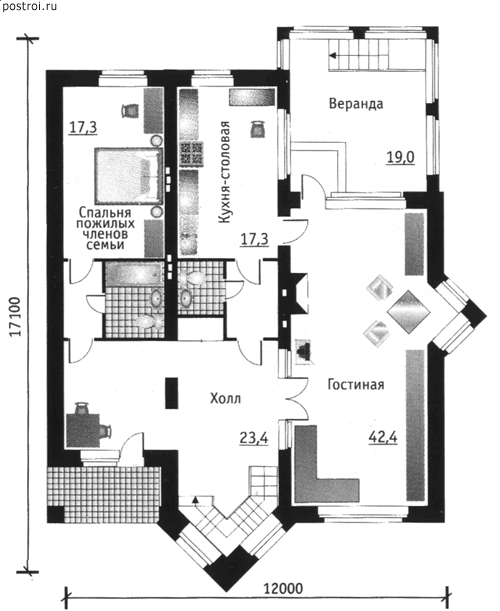
Проект G-354-1K
Застройщик: Юникс-Строй
354.4 м²
1 / 4
🏠
354.4 м²
📐
3 этаж
🧱
Кирпич
Похожие проекты
Похожие по цене
Похожие по площади
Проект A-354-1K
3 этаж
от 29 028 000 ₽
→
Проект N-377-1K
2 этаж
от 29 023 080 ₽
→
Проект G-414-1P
2 этаж
от 29 022 000 ₽
→
Проект дома «Homestead»
2 спальн. · 4 санузл.
от 17 715 000 ₽
→
Проект дома «Homestead»
2 спальн. · 4 санузл.
от 17 715 000 ₽
→
Одноэтажный дом «Хомстед» с плоской крышей
2 спальн. · 4 санузл. · 1 этаж
от 21 258 000 ₽
→
На сайт застройщика