Перейти к контенту
Подбор и сравнение проектов домов от застройщиков Московской области
Подборщик домов
Калькулятор сметы
Калькулятор площади
Форум
Блог
Главная
›
Каталог проектов
›
Проект H-141-2K
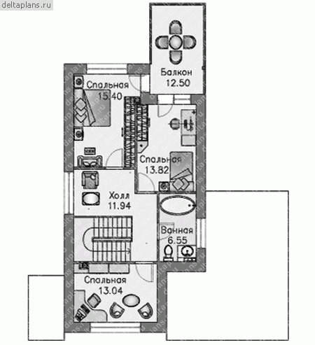
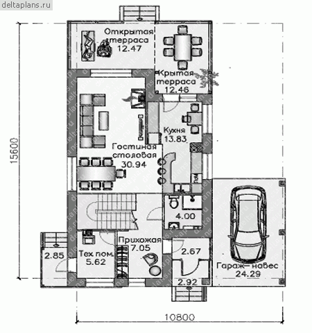
Проект H-141-2K
Застройщик: Юникс-Строй
141.5 м²
1 / 3
🏠
141.5 м²
📐
2 этаж
🧱
Кирпич
Похожие проекты
Похожие по цене
Похожие по площади
Проект H-141-1K
2 этаж
от 11 603 000 ₽
→
Проект H-141-3K
2 этаж
от 11 603 000 ₽
→
Проект одноэтажного дома "Панкейк" из бруса
2 спальн. · 2 этаж
от 11 603 724 ₽
→
Проект H-141-1K
2 этаж
от 11 603 000 ₽
→
Проект H-141-3K
2 этаж
от 11 603 000 ₽
→
Проект T-141-1P
2 этаж
от 9 905 000 ₽
→
На сайт застройщика