Перейти к контенту
Подбор и сравнение проектов домов от застройщиков Московской области
Подборщик домов
Калькулятор сметы
Калькулятор площади
Форум
Блог
Главная
›
Каталог проектов
›
Проект H-155-1S
Проект H-155-1S
Застройщик: Юникс-Строй
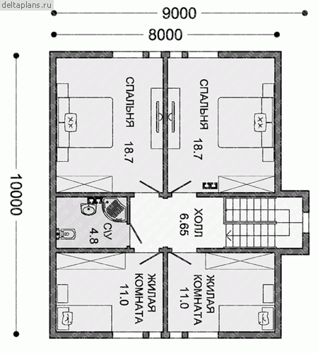
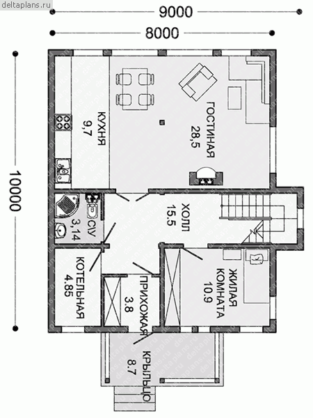
155.96 м²
1 / 3
🏠
155.96 м²
📐
2 этаж
🧱
Каркас
Похожие проекты
Похожие по цене
Похожие по площади
Каркасный дом 7x12 Проект "Ангелит"
2 спальн. · 1 санузл. · 1 этаж
от 3 072 000 ₽
→
Дом «Егоров» 6х7 м
3 спальн. · 2 этаж
от 3 070 000 ₽
→
Вега 2
3 спальн. · 2 санузл. · 2 этаж
от 3 069 800 ₽
→
Проект одноэтажного дома "Надежное пристанище" из бруса
2 спальн. · 1 этаж
от 11 474 759 ₽
→
Проект одноэтажного каркасного дома "Корсика"
4 спальн. · 2 этаж
от 11 429 963 ₽
→
Проект одноэтажного каркасного дома "Щипок"
4 спальн. · 2 этаж
от 11 338 523 ₽
→
На сайт застройщика