Перейти к контенту
Подбор и сравнение проектов домов от застройщиков Московской области
Подборщик домов
Калькулятор сметы
Калькулятор площади
Форум
Блог
Главная
›
Каталог проектов
›
Проект H-395-1P
Проект H-395-1P
Застройщик: Юникс-Строй
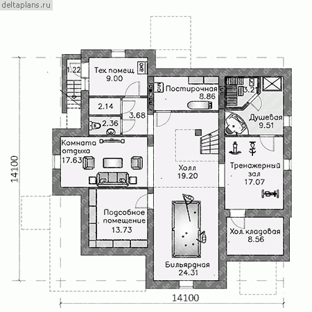
359.09 м²
1 / 4
🏠
359.09 м²
📐
3 этаж
🧱
Пеноблок
Похожие проекты
Похожие по цене
Похожие по площади
Проект H-306-1K
2 этаж
от 25 133 000 ₽
→
Двухэтажный дом «Гринвилл» со вторым светом
3 спальн. · 2 санузл. · 2 этаж
от 25 140 000 ₽
→
Проект G-181-1D
2 этаж
от 25 125 000 ₽
→
Проект «Tarm»
от 17 950 000 ₽
→
Проект «Tarm»
от 17 950 000 ₽
→
Современный дом с комбинированным фасадом «Тарм»
5 спальн. · 4 санузл. · 2 этаж
от 21 540 000 ₽
→
На сайт застройщика