Перейти к контенту
Подбор и сравнение проектов домов от застройщиков Московской области
Подборщик домов
Калькулятор сметы
Калькулятор площади
Форум
Блог
Главная
›
Каталог проектов
›
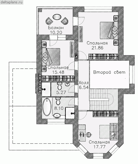
Проект I-203-1P
Проект I-203-1P
Застройщик: Юникс-Строй
203.0 м²
1 / 3
🏠
203.0 м²
📐
2 этаж
🧱
Пеноблок
Похожие проекты
Похожие по цене
Похожие по площади
Проект двухэтажного коттеджа "Наварро" из газобетона
5 спальн. · 2 этаж
от 14 210 000 ₽
→
Проект дома T-203-1P
2 этаж
от 14 203 000 ₽
→
Проект V-172-1K
2 этаж
от 14 222 900 ₽
→
Каркасный дом “Авангард”
5 спальн. · 2 этаж
от 4 425 400 ₽
→
Проект К-217 11 на 9, площадью 203 за 6 743 250 руб
5 спальн. · 2 этаж
от 6 743 250 ₽
→
Проект К-217 11 на 9, площадью 203 за 6 743 250 руб
5 спальн. · 2 этаж
от 5 684 000 ₽
→
На сайт застройщика