Перейти к контенту
Подбор и сравнение проектов домов от застройщиков Московской области
Подборщик домов
Калькулятор сметы
Калькулятор площади
Форум
Блог
Главная
›
Каталог проектов
›
Проект I-216-1P
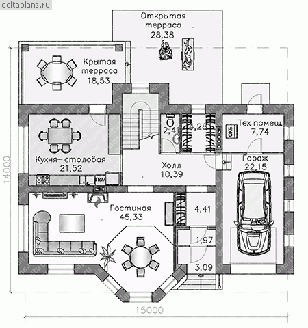
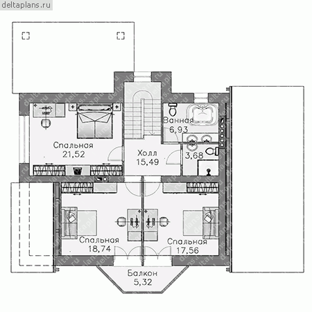
Проект I-216-1P
Застройщик: Юникс-Строй
216.5 м²
1 / 3
🏠
216.5 м²
📐
2 этаж
🧱
Пеноблок
Похожие проекты
Похожие по цене
Похожие по площади
Проект дома W-237-1P
2 этаж
от 15 151 500 ₽
→
Проект дома H-216-1P
2 этаж
от 15 160 600 ₽
→
Проект одноэтажного каркасного дома "Марфик"
5 спальн. · 2 этаж
от 15 162 365 ₽
→
Двухэтажный дом с гаражом на две машины «Рейтон»
3 спальн. · 4 санузл. · 2 этаж
от 12 990 000 ₽
→
Проект U-218-1K
2 этаж
от 17 750 540 ₽
→
Проект дома W-237-1P
2 этаж
от 15 151 500 ₽
→
На сайт застройщика