Перейти к контенту
Подбор и сравнение проектов домов от застройщиков Московской области
Подборщик домов
Калькулятор сметы
Калькулятор площади
Форум
Блог
Главная
›
Каталог проектов
›
Проект J-170-1P
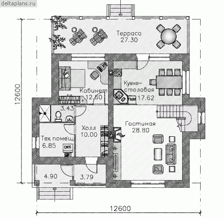
Проект J-170-1P
Застройщик: Юникс-Строй
170.1 м²
1 / 3
🏠
170.1 м²
📐
2 этаж
🧱
Пеноблок
Похожие проекты
Похожие по цене
Похожие по площади
Проект M-170-1P
2 этаж
от 11 907 000 ₽
→
Проект X-170-1P
2 этаж
от 11 906 300 ₽
→
Проект X-170-2P
2 этаж
от 11 906 300 ₽
→
Проект M-170-1P
2 этаж
от 11 907 000 ₽
→
Проект W-170-1K
2 этаж
от 13 948 200 ₽
→
Проект X-170-1P
2 этаж
от 11 906 300 ₽
→
На сайт застройщика