Перейти к контенту
Подбор и сравнение проектов домов от застройщиков Московской области
Подборщик домов
Калькулятор сметы
Калькулятор площади
Форум
Блог
Главная
›
Каталог проектов
›
Проект J-247-1P
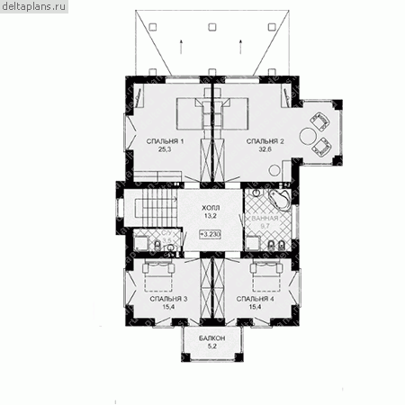
Проект J-247-1P
Застройщик: Юникс-Строй
247.0 м²
1 / 3
🏠
247.0 м²
📐
2 этаж
🧱
Пеноблок
Похожие проекты
Похожие по цене
Похожие по площади
Проект дома F-247-1P
2 этаж
от 17 290 000 ₽
→
Проект дома M-246-1P
2 этаж
от 17 284 400 ₽
→
Проект U-210-1K
2 этаж
от 17 301 180 ₽
→
Проект одноэтажного дома "Эдвард" из бруса
5 спальн. · 2 этаж
от 10 591 022 ₽
→
Проект К-138 13 на 10, площадью 247 за 8 326 500 руб
4 спальн. · 2 этаж
от 8 326 500 ₽
→
Проект К-138 13 на 10, площадью 247 за 8 326 500 руб
4 спальн. · 2 этаж
от 6 916 000 ₽
→
На сайт застройщика