Перейти к контенту
Подбор и сравнение проектов домов от застройщиков Московской области
Подборщик домов
Калькулятор сметы
Калькулятор площади
Форум
Блог
Главная
›
Каталог проектов
›
Проект J-280-1P
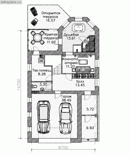
Проект J-280-1P
Застройщик: Юникс-Строй
275.86 м²
1 / 4
🏠
275.86 м²
📐
3 этаж
🧱
Пеноблок
Похожие проекты
Похожие по цене
Похожие по площади
Проект H-275-1P
3 этаж
от 19 309 500 ₽
→
Проект К-196 19 на 15, площадью 580 за 19 293 750 руб
4 спальн. · 2 этаж
от 19 293 750 ₽
→
Проект E-235-1K
2 этаж
от 19 336 420 ₽
→
Проект H-275-1P
3 этаж
от 19 309 500 ₽
→
Дом по проекту «ЗС 901-21» - Золотое Сечение
4 спальн. · 4 санузл.
от 34 500 000 ₽
→
Проект К-173 16 на 8, площадью 276 за 9 084 000 руб
4 спальн. · 2 этаж
от 9 084 000 ₽
→
На сайт застройщика