Перейти к контенту
Подбор и сравнение проектов домов от застройщиков Московской области
Подборщик домов
Калькулятор сметы
Калькулятор площади
Форум
Блог
Главная
›
Каталог проектов
›
Проект J-336-1K
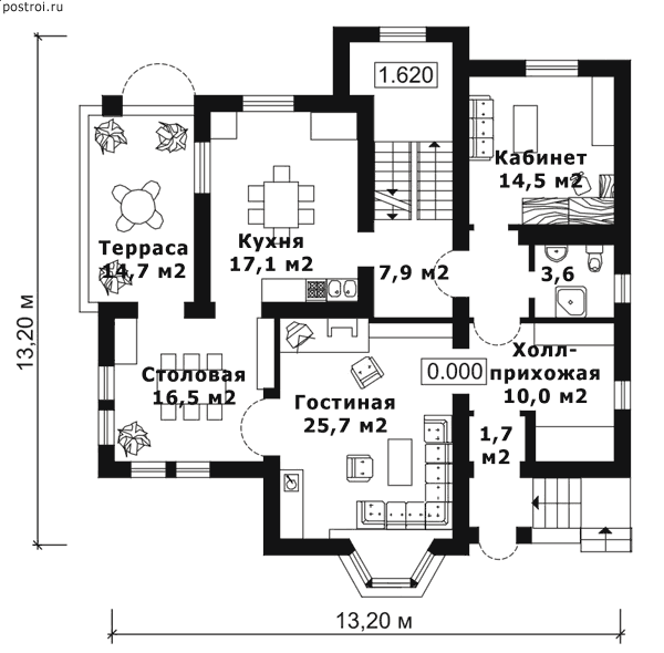
Проект J-336-1K
Застройщик: Юникс-Строй
336.1 м²
1 / 4
🏠
336.1 м²
📐
3 этаж
🧱
Кирпич
Похожие проекты
Похожие по цене
Похожие по площади
Проект W-336-1K
2 этаж
от 27 552 000 ₽
→
Проект дома H-393-1P
2 этаж
от 27 524 000 ₽
→
Проект N-340-1K
2 этаж
от 27 607 760 ₽
→
Проект К-238 15 на 11, площадью 336 за 11 175 750 руб
5 спальн. · 2 этаж
от 11 175 750 ₽
→
Проект К-238 15 на 11, площадью 336 за 11 175 750 руб
5 спальн. · 2 этаж
от 9 408 000 ₽
→
Проект W-336-1K
2 этаж
от 27 552 000 ₽
→
На сайт застройщика