Перейти к контенту
Подбор и сравнение проектов домов от застройщиков Московской области
Подборщик домов
Калькулятор сметы
Калькулятор площади
Форум
Блог
Главная
›
Каталог проектов
›
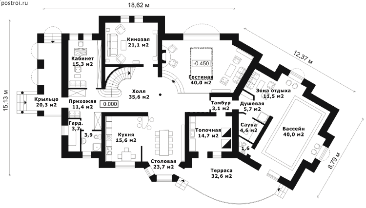
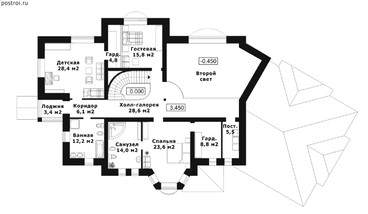
Проект J-407-1K
Проект J-407-1K
Застройщик: Юникс-Строй
407.1 м²
1 / 3
🏠
407.1 м²
📐
2 этаж
🧱
Кирпич
Похожие проекты
Похожие по цене
Похожие по площади
Дом по проекту «ЗС 835-20» - Золотое Сечение
2 спальн. · 2 санузл.
от 33 375 000 ₽
→
Проект E-477-1P
3 этаж
от 33 397 000 ₽
→
Большой одноэтажный дом «Готенберг» с террасой
4 спальн. · 4 санузл. · 1 этаж
от 33 336 000 ₽
→
Проект E-407-1P
2 этаж
от 28 539 000 ₽
→
Проект M-407-1K
2 этаж
от 33 437 140 ₽
→
Проект E-408-1K
2 этаж
от 33 464 200 ₽
→
На сайт застройщика