Перейти к контенту
Подбор и сравнение проектов домов от застройщиков Московской области
Подборщик домов
Калькулятор сметы
Калькулятор площади
Форум
Блог
Главная
›
Каталог проектов
›
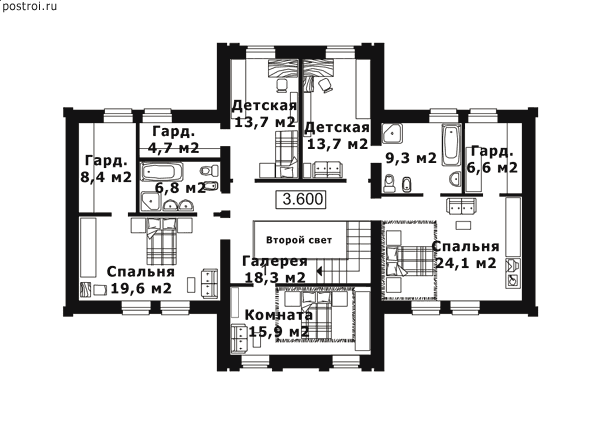
Проект J-425-1K
Проект J-425-1K
Застройщик: Юникс-Строй
425.1 м²
1 / 4
🏠
425.1 м²
📐
3 этаж
🧱
Кирпич
Похожие проекты
Похожие по цене
Похожие по площади
Проект «Darvel»
5 спальн. · 6 санузл.
от 34 750 000 ₽
→
Проект B-423-1K
3 этаж
от 34 718 800 ₽
→
Дом по проекту «ЗС 53-17» - Золотое Сечение
4 спальн. · 3 санузл.
от 35 000 000 ₽
→
Проект К-198 19 на 11, площадью 425 за 14 139 750 руб
4 спальн. · 2 этаж
от 14 139 750 ₽
→
Проект К-198 19 на 11, площадью 425 за 14 139 750 руб
4 спальн. · 2 этаж
от 11 900 000 ₽
→
Проект двухэтажного дома "Эдельвейс" из бруса
2 этаж
от 29 361 327 ₽
→
На сайт застройщика