Перейти к контенту
Подбор и сравнение проектов домов от застройщиков Московской области
Подборщик домов
Калькулятор сметы
Калькулятор площади
Форум
Блог
Главная
›
Каталог проектов
›
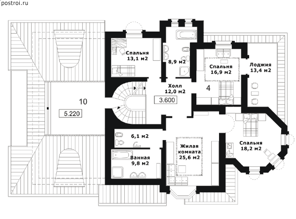
Проект J-503-1K
Проект J-503-1K
Застройщик: Юникс-Строй
502.6 м²
1 / 4
🏠
502.6 м²
📐
3 этаж
🧱
Кирпич
Похожие проекты
Похожие по цене
Похожие по площади
Коттедж в стиле Райта «ROCKVILLE» с большой террасой
6 спальн. · 5 санузл. · 2 этаж
от 41 190 000 ₽
→
Проект U-503-1K
3 этаж
от 41 246 000 ₽
→
Проект A-275-1D
2 этаж
от 41 250 000 ₽
→
Проект U-503-1K
3 этаж
от 41 246 000 ₽
→
2-этажный коттедж "Тироль" в стиле «Прерий Райта»
4 спальн. · 3 санузл. · 2 этаж
от 30 132 000 ₽
→
Проект дома «Тироль»
4 спальн. · 3 санузл.
от 25 100 000 ₽
→
На сайт застройщика