Перейти к контенту
Подбор и сравнение проектов домов от застройщиков Московской области
Подборщик домов
Калькулятор сметы
Калькулятор площади
Форум
Блог
Главная
›
Каталог проектов
›
Проект J-533-1K
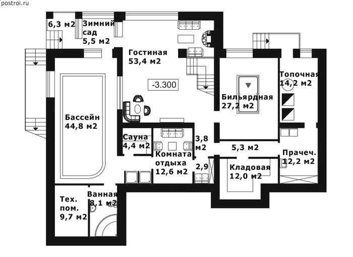
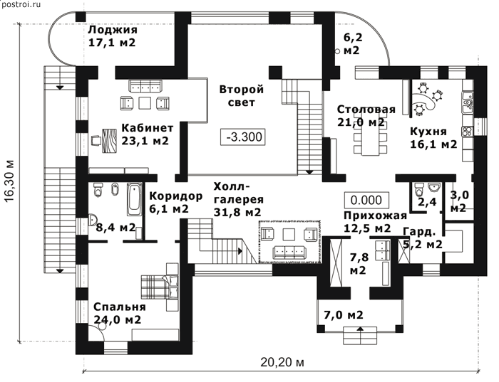
Проект J-533-1K
Застройщик: Юникс-Строй
532.6 м²
1 / 4
🏠
532.6 м²
📐
3 этаж
🧱
Кирпич
Похожие проекты
Похожие по цене
Похожие по площади
Проект G-291-1D
4 санузл. · 2 этаж
от 43 680 000 ₽
→
Проект S-533-1K
3 этаж
от 43 689 600 ₽
→
Дом по проекту «ЗС 557-20» - Золотое Сечение
5 спальн. · 5 санузл.
от 43 750 000 ₽
→
Проект S-533-1K
3 этаж
от 43 689 600 ₽
→
Проект двухэтажного коттеджа "Министерский" из газобетона
6 спальн. · 2 этаж
от 24 632 000 ₽
→
Проект S-535-1K
3 этаж
от 43 853 600 ₽
→
На сайт застройщика