Перейти к контенту
Подбор и сравнение проектов домов от застройщиков Московской области
Подборщик домов
Калькулятор сметы
Калькулятор площади
Форум
Блог
Главная
›
Каталог проектов
›
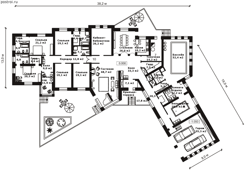
Проект J-540-1K
Проект J-540-1K
Застройщик: Юникс-Строй
535.2 м²
1 / 2
🏠
535.2 м²
📐
1 этаж
🧱
Кирпич
Похожие проекты
Похожие по цене
Похожие по площади
Проект S-536-1K
3 этаж
от 43 902 800 ₽
→
Проект S-535-1K
3 этаж
от 43 853 600 ₽
→
Дом в стиле Райта «HIGHLAND» с бассейном на улице
5 спальн. · 4 санузл. · 2 этаж
от 44 010 000 ₽
→
Проект S-536-1K
3 этаж
от 43 902 800 ₽
→
Проект S-535-1K
3 этаж
от 43 853 600 ₽
→
Проект «Rimini»
от 26 800 000 ₽
→
На сайт застройщика