Перейти к контенту
Подбор и сравнение проектов домов от застройщиков Московской области
Подборщик домов
Калькулятор сметы
Калькулятор площади
Форум
Блог
Главная
›
Каталог проектов
›
Проект L-167-1P
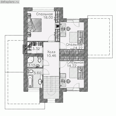
Проект L-167-1P
Застройщик: Юникс-Строй
167.8 м²
1 / 3
🏠
167.8 м²
📐
2 этаж
🧱
Пеноблок
Похожие проекты
Похожие по цене
Похожие по площади
Проект E-168-1P
2 этаж
от 11 748 100 ₽
→
Дом по проекту «ЗС 2-17» - Золотое Сечение
3 спальн. · 1 санузл.
от 11 750 000 ₽
→
Проект одноэтажного каркасного дома "Тефия2"
4 спальн. · 2 этаж
от 11 750 001 ₽
→
Проект E-168-1P
2 этаж
от 11 748 100 ₽
→
Проект G-167-1P
2 этаж
от 11 753 000 ₽
→
Проект A-247-1P
2 этаж
от 11 739 000 ₽
→
На сайт застройщика