Перейти к контенту
Подбор и сравнение проектов домов от застройщиков Московской области
Подборщик домов
Калькулятор сметы
Калькулятор площади
Форум
Блог
Главная
›
Каталог проектов
›
Проект L-184-1K
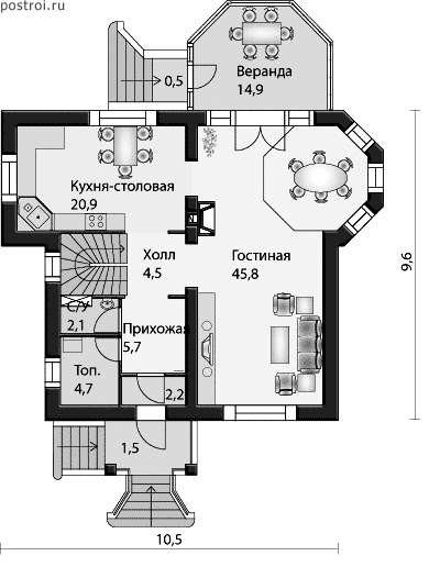
Проект L-184-1K
Застройщик: Юникс-Строй
183.7 м²
1 / 3
🏠
183.7 м²
📐
2 этаж
🧱
Кирпич
Похожие проекты
Похожие по цене
Похожие по площади
Проект дома из керамоблоков 13х14 ТКБ-180: цена 8723000 руб.
5 спальн. · 3 санузл. · 2 этаж
от 15 046 000 ₽
→
Дом из газобетонных блоков С-338 ГБ «Достижение»
5 спальн. · 3 санузл. · 2 этаж
от 15 045 000 ₽
→
Дом из керамических блоков С-338 КЕ «Достижение»
5 спальн. · 3 санузл. · 2 этаж
от 15 045 000 ₽
→
Проект X-184-1P
2 этаж
от 12 855 500 ₽
→
Проект дома «Бастер»
5 спальн. · 2 этаж
от 10 842 000 ₽
→
Проект дома U-184-1P
2 этаж
от 12 852 000 ₽
→
На сайт застройщика