Перейти к контенту
Подбор и сравнение проектов домов от застройщиков Московской области
Подборщик домов
Калькулятор сметы
Калькулятор площади
Форум
Блог
Главная
›
Каталог проектов
›
Проект L-219-2P
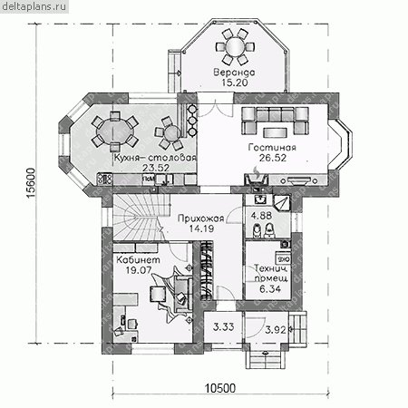
Проект L-219-2P
Застройщик: Юникс-Строй
193.8 м²
1 / 3
🏠
193.8 м²
📐
2 этаж
🧱
Пеноблок
Похожие проекты
Похожие по цене
Похожие по площади
Проект T-193-1P
2 этаж
от 13 566 000 ₽
→
Проект одноэтажного каркасного дома "Фигаро"
3 спальн. · 2 этаж
от 13 566 326 ₽
→
Проект X-194-1P
2 этаж
от 13 567 400 ₽
→
Проект T-193-1P
2 этаж
от 13 566 000 ₽
→
Проект X-194-1P
2 этаж
от 13 567 400 ₽
→
Проект V-193-1K
2 этаж
от 15 894 060 ₽
→
На сайт застройщика