Перейти к контенту
Подбор и сравнение проектов домов от застройщиков Московской области
Подборщик домов
Калькулятор сметы
Калькулятор площади
Форум
Блог
Главная
›
Каталог проектов
›
Проект L-262-1K
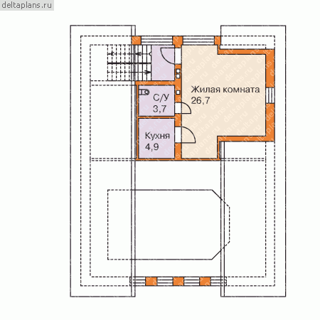
Проект L-262-1K
Застройщик: Юникс-Строй
262.16 м²
1 / 4
🏠
262.16 м²
📐
3 этаж
🧱
Кирпич
Похожие проекты
Похожие по цене
Похожие по площади
Проект I-262-1K
3 этаж
от 21 497 120 ₽
→
Проект E-242-1K
2 этаж
от 21 475 800 ₽
→
Проект дома H-307-1P
2 этаж
от 21 532 000 ₽
→
Проект I-262-1K
3 этаж
от 21 497 120 ₽
→
Проект двухэтажного коттеджа "Вильямс" из газобетона
4 спальн. · 2 этаж
от 11 440 000 ₽
→
Дом 4 спальни со вторым светом №371
2 этаж
от 16 631 000 ₽
→
На сайт застройщика