Перейти к контенту
Подбор и сравнение проектов домов от застройщиков Московской области
Подборщик домов
Калькулятор сметы
Калькулятор площади
Форум
Блог
Главная
›
Каталог проектов
›
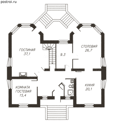
Проект L-460-1K
Проект L-460-1K
Застройщик: Юникс-Строй
460.0 м²
1 / 5
🏠
460.0 м²
📐
3 этаж
🧱
Кирпич
Похожие проекты
Похожие по цене
Похожие по площади
Проект B-460-1K
3 этаж
от 37 728 200 ₽
→
Проект «Mitchell»
5 спальн. · 6 санузл.
от 37 700 000 ₽
→
Проект «Princeton»
6 спальн. · 7 санузл.
от 37 700 000 ₽
→
Проект B-460-1K
3 этаж
от 37 728 200 ₽
→
Дом из газобетонных блоков С-461 ГБ «Новый Рассвет»
4 спальн. · 3 санузл. · 4 этаж
от 19 283 000 ₽
→
Дом из керамических блоков С-461 КЕ «Новый Рассвет»
4 спальн. · 3 санузл. · 4 этаж
от 19 283 000 ₽
→
На сайт застройщика