Перейти к контенту
Подбор и сравнение проектов домов от застройщиков Московской области
Подборщик домов
Калькулятор сметы
Калькулятор площади
Форум
Блог
Главная
›
Каталог проектов
›
Проект L-476-1D
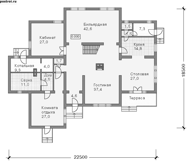
Проект L-476-1D
Застройщик: Юникс-Строй
635.5 м²
1 / 3
🏠
635.5 м²
📐
2 этаж
🧱
Дерево
Похожие проекты
Похожие по цене
Похожие по площади
Проект A-095-1K
2 этаж
от 95 366 000 ₽
→
Проект U-1163-1K
3 этаж
от 95 366 000 ₽
→
Большой коттедж с беседкой и прудом с кострищем «Паркфилд»
6 спальн. · 9 санузл. · 2 этаж
от 94 008 000 ₽
→
Проект «Бургос»
от 31 800 000 ₽
→
Проект «Бургос»
от 31 800 000 ₽
→
Проект «Cleveland»
5 спальн. · 4 санузл.
от 31 620 000 ₽
→
На сайт застройщика