Перейти к контенту
Подбор и сравнение проектов домов от застройщиков Московской области
Подборщик домов
Калькулятор сметы
Калькулятор площади
Форум
Блог
Главная
›
Каталог проектов
›
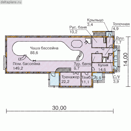
Проект L-545-1D
Проект L-545-1D
Застройщик: Юникс-Строй
545.3 м²
1 / 3
🏠
545.3 м²
📐
2 этаж
🧱
Дерево
Похожие проекты
Похожие по цене
Похожие по площади
Проект U-1000-1K
3 этаж
от 82 000 000 ₽
→
Проект E-991-1K
3 этаж
от 81 253 800 ₽
→
Дом по проекту «ЗС 1000-22» - Золотое Сечение
3 спальн. · 3 санузл.
от 81 125 000 ₽
→
Проект «Telford»
6 спальн. · 3 санузл.
от 27 250 000 ₽
→
Проект «Telford»
6 спальн. · 3 санузл.
от 27 250 000 ₽
→
Современный дом «Телфорд»
6 спальн. · 3 санузл. · 2 этаж
от 32 700 000 ₽
→
На сайт застройщика