Перейти к контенту
Подбор и сравнение проектов домов от застройщиков Московской области
Подборщик домов
Калькулятор сметы
Калькулятор площади
Форум
Блог
Главная
›
Каталог проектов
›
Проект M-052-1D
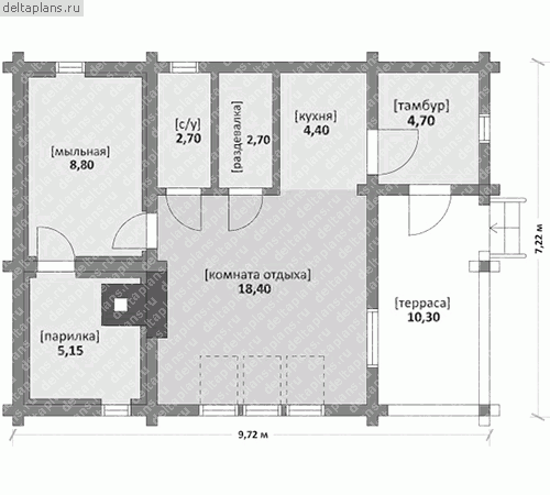
Проект M-052-1D
Застройщик: Юникс-Строй
52.65 м²
1 / 2
🏠
52.65 м²
📐
1 этаж
🧱
Дерево
Похожие проекты
Похожие по цене
Похожие по площади
Проект К-145 16 на 17, площадью 282 за 11 082 000 руб
3 спальн. · 1 этаж
от 7 896 000 ₽
→
Проект каркасного дома КП-97
1 этаж
от 7 900 000 ₽
→
Проект дома Фареро
2 этаж
от 7 900 000 ₽
→
Проект каркасного дома КП-50
1 этаж
от 3 300 000 ₽
→
Каркасный дом 5x6 Проект "Гематит"
1 спальн. · 1 этаж
от 1 569 000 ₽
→
Каркасный дом 7.5x7 Проект "Раухтопаз"
1 санузл. · 1 этаж
от 1 571 000 ₽
→
На сайт застройщика