Перейти к контенту
Подбор и сравнение проектов домов от застройщиков Московской области
Подборщик домов
Калькулятор сметы
Калькулятор площади
Форум
Блог
Главная
›
Каталог проектов
›
Проект M-080-1P
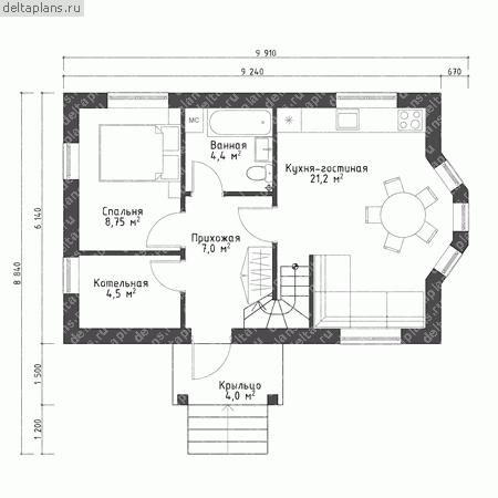
Проект M-080-1P
Застройщик: Юникс-Строй
79.8 м²
1 / 3
🏠
79.8 м²
📐
2 этаж
🧱
Пеноблок
Похожие проекты
Похожие по цене
Похожие по площади
Мой Дом от компании Я Мой Дом
2 спальн. · 1 санузл. · 1 этаж
от 5 583 000 ₽
→
ПД - 261 - Строительство домов из Каркаса, СИП, Бруса под ключ
4 спальн. · 2 санузл. · 2 этаж
от 5 590 000 ₽
→
Проект одноэтажного каркасного дома Бунгало S+ под ключ от компании БАКО
3 спальн. · 1 санузл. · 1 этаж
от 5 592 400 ₽
→
Богатырь ЛК 1
5 спальн. · 2 санузл. · 2 этаж
от 3 311 000 ₽
→
Богатырь ЛК 1
5 спальн. · 2 санузл. · 2 этаж
от 3 311 000 ₽
→
Стрелец 1
3 спальн. · 1 санузл. · 2 этаж
от 2 899 800 ₽
→
На сайт застройщика