Перейти к контенту
Подбор и сравнение проектов домов от застройщиков Московской области
Подборщик домов
Калькулятор сметы
Калькулятор площади
Форум
Блог
Главная
›
Каталог проектов
›
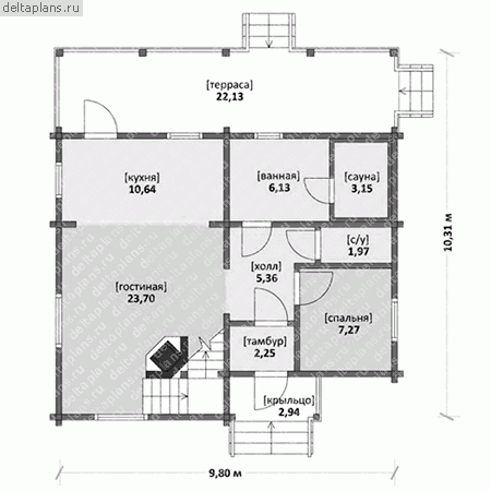
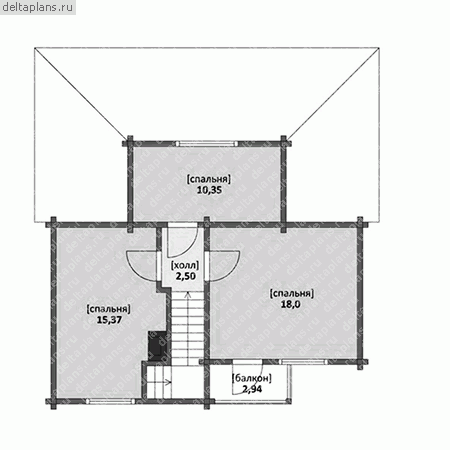
Проект M-116-1D
Проект M-116-1D
Застройщик: Юникс-Строй
116.38 м²
1 / 3
🏠
116.38 м²
📐
2 этаж
🧱
Дерево
Похожие проекты
Похожие по цене
Похожие по площади
Проект двухэтажного каркасного дома "Лиситея"
5 спальн. · 2 этаж
от 17 456 670 ₽
→
Проект N-218-2K
2 этаж
от 17 461 080 ₽
→
Дом Павловское из газобетона: заказать в Москве по низкой цене
4 спальн. · 2 этаж
от 17 450 000 ₽
→
Проект G-116-1P
2 этаж
от 8 141 000 ₽
→
Проект одноэтажного каркасного дома "Эридана"
4 спальн. · 2 этаж
от 7 863 814 ₽
→
Проект U-116-1P
1 этаж
от 8 129 800 ₽
→
На сайт застройщика