Перейти к контенту
Подбор и сравнение проектов домов от застройщиков Московской области
Подборщик домов
Калькулятор сметы
Калькулятор площади
Форум
Блог
Главная
›
Каталог проектов
›
Проект M-142-1D
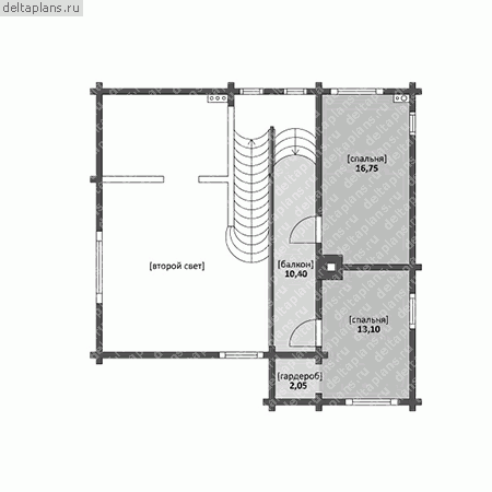
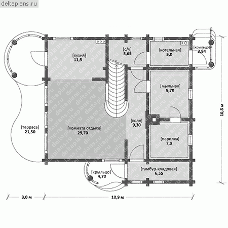
Проект M-142-1D
Застройщик: Юникс-Строй
142.2 м²
1 / 3
🏠
142.2 м²
📐
2 этаж
🧱
Дерево
Похожие проекты
Похожие по цене
Похожие по площади
Проект U-141-1D
2 этаж
от 21 331 500 ₽
→
Проект U-294-1K
2 этаж
от 21 327 380 ₽
→
Проект V-260-1K
2 этаж
от 21 324 920 ₽
→
Проект U-141-1D
2 этаж
от 21 331 500 ₽
→
«Бонн 111»
1 этаж
от 6 122 000 ₽
→
Проект F-142-1K
2 этаж
от 11 652 200 ₽
→
На сайт застройщика