Перейти к контенту
Подбор и сравнение проектов домов от застройщиков Московской области
Подборщик домов
Калькулятор сметы
Калькулятор площади
Форум
Блог
Главная
›
Каталог проектов
›
Проект M-148-1D
Проект M-148-1D
Застройщик: Юникс-Строй
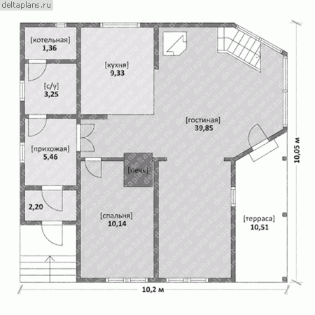
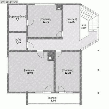
148.04 м²
1 / 3
🏠
148.04 м²
📐
2 этаж
🧱
Дерево
Похожие проекты
Похожие по цене
Похожие по площади
Проект одноэтажного дома "Брют" из бруса
6 спальн. · 2 этаж
от 22 205 084 ₽
→
Проект L-271-1K
3 этаж
от 22 197 400 ₽
→
Проект U-270-1K
3 этаж
от 22 193 300 ₽
→
Проект двухэтажного каркасного дома "Титания"
3 спальн. · 2 этаж
от 10 744 165 ₽
→
Проект одноэтажного каркасного дома "Офелия2"
4 спальн. · 2 этаж
от 10 972 764 ₽
→
Дом по проекту «ЗС 968-21» - Золотое Сечение
3 спальн. · 2 санузл.
от 18 500 000 ₽
→
На сайт застройщика